Anaïs EPAGNOUX Négociatrice
Télécharger la fiche
Exclusivité Coup de coeur

Maison 5 pièce(s) 3 chambre(s) 149 m²

Argelès-Gazost (65400)
279 000 € Référence 2428

A propos de ce bien

EXCLUSIVITE AGENCE - Centre ville Argelès, maison de ville entièrement rénovée en 2019.

Maison de ville, mitoyenne, édifiée en pierres au début du XXème siècle sur rez-de-chaussée, 1er étage, 2ème étage et combles.

Entièrement rénovée en 2019, elle dispose :
- Au rez-de-chaussée et pouvant être aménagée en un appartement T2 : d'une entrée, pièce de vie, chambre et salle d'eau avec WC
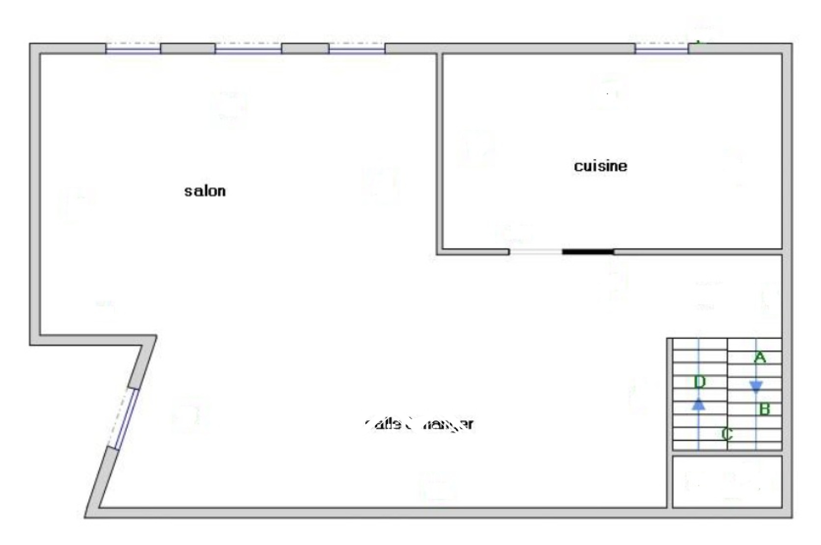
- Au premier étage : salon / pièce de vie avec pierres apparentes et cuisine séparée aménagée.
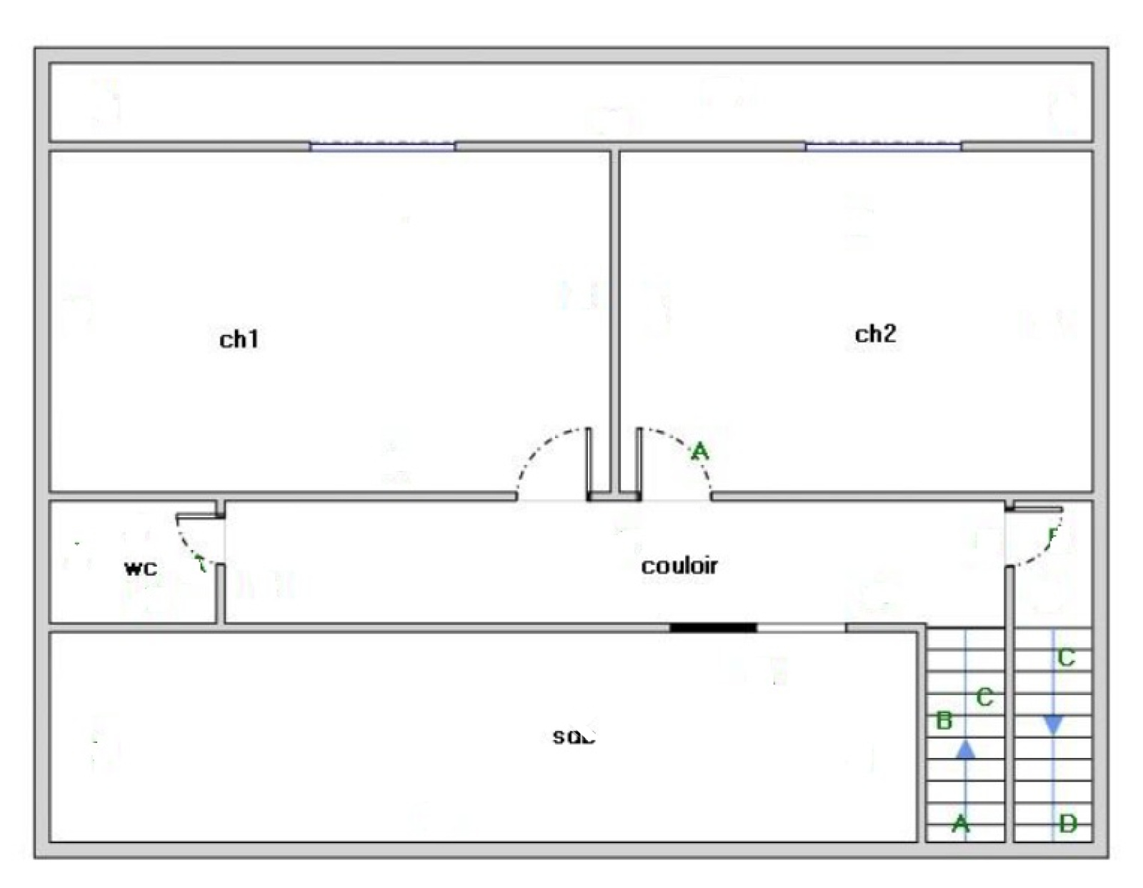
- Au deuxième étage : un couloir dessert 2 grandes chambres avec accès galerie couverte, une grande salle d'eau et WC séparés.
- Dans les combles, mansardés, espace chaufferie et surface complémentaire d'environ 12m² pouvant être aménagée.

Idéalement placée en plein coeur de la ville avec très jolie vue sur le centre ville.
Exposée OUEST.
Menuiseries en double vitrage, chauffage central au gaz de ville.
Cachet de la pierre, bel escalier central... et bien d'autres atouts à venir découvrir lors d'une visite.
Taxe foncière 1430€.

Les informations sur les risques auxquels ce bien est exposé sont disponibles sur le site Géorisques : www.georisques.gouv.fr

Caractéristiques de ce bien

  • Surface 149 m²
  • carrez 149 m²
  • terrain 70 m²
  • séjour 38 m²
  • 3 chambre(s)
  • 2 salle(s) d'eau
  • construit en 2018
  • cuisine séparée (équipée)
  • Chauffage individuel : radiateur (gaz de ville)
  • exposition Ouest
  • 2 côté(s) mitoyen(s)
  • 4 niveau(x)
  • vue centre ville
  • terrasse

Diagnostics énergétiques

Consommation énergétique
A B C D E F G
Emission de gaz à effet de serre
A B C D E F G

Montant estimé des dépenses annuelles d'énergie pour un usage standard est compris entre 1 930 € et 2 670 € . Prix moyens des énergies indexés sur les années 2021, 2022 et 2023 (abonnements compris).

Informations financières

Prix de vente honoraires TTC inclus 279 000 €
Prix de vente honoraires TTC exclus 265 000 €
Honoraires TTC à la charge acquéreur 5,28 %
Taxe foncière annuelle 1 450 €

Autour du bien

  • Commerces et santé
  • Loisirs
  • Ecoles
  • Transports
  • Pratique

Calcul des mensualités

* Champs obligatoires