Anaïs EPAGNOUX Négociatrice
Télécharger la fiche
Coup de coeur

Maison 6 pièce(s) 5 chambre(s) 138 m²

Argelès-Gazost (65400)
485 000 € Référence 2380

A propos de ce bien

VERSANT HAUTACAM - Vue imprenable pour cette très belle propriété.

Située en position dominante et à 2kms d'ARGELES, venez découvrir cette propriété édifiée en 2002 et entièrement rénovée en 2011/2012.

Sur une parcelle fleurie et arborée d'environ 850m² (avec la possibilité d'acheter du terrain en plus ou en moins),
la maison est d'une surface au sol de 150m² et d'une surface habitable de 138m² sur ses 2 niveaux.
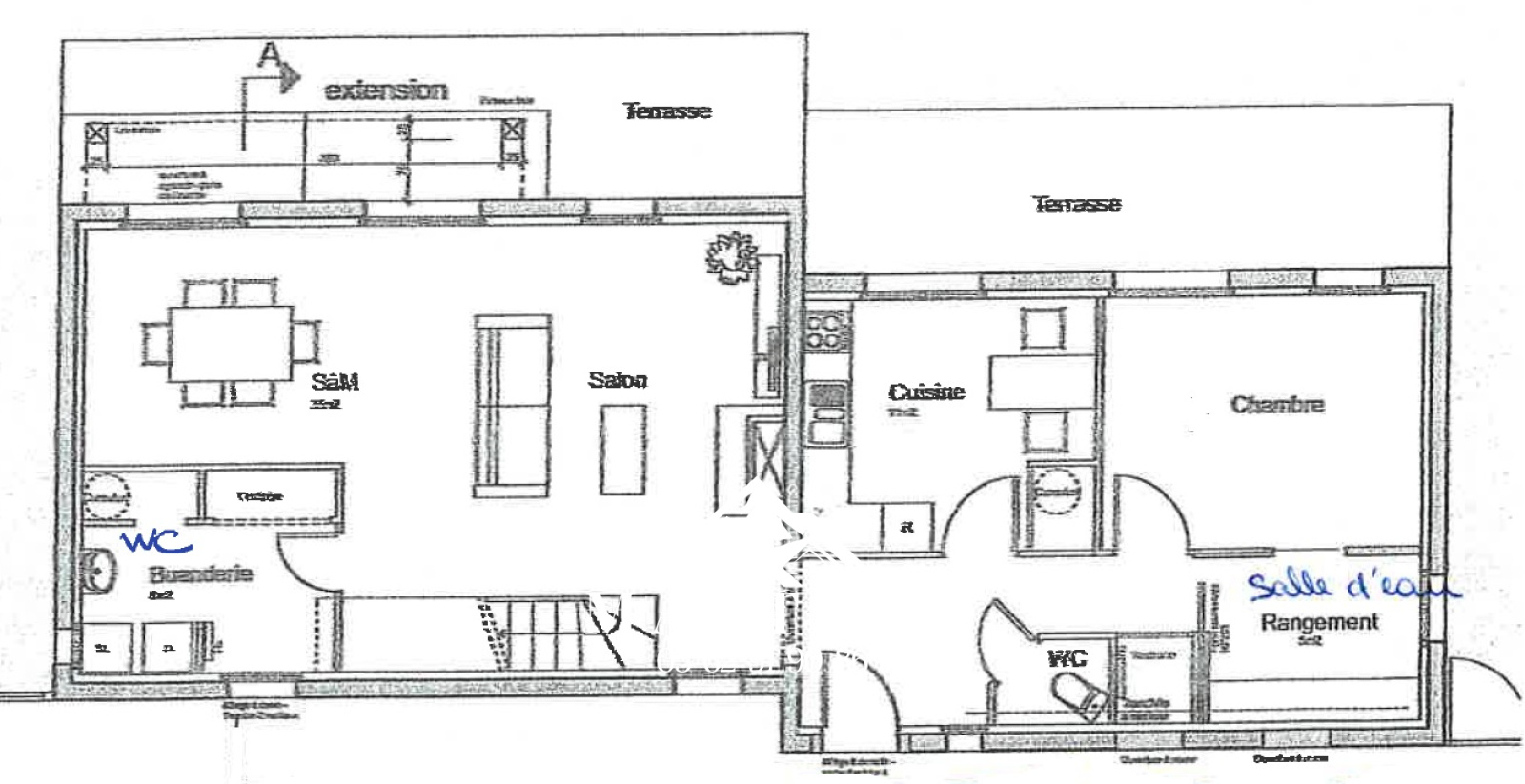
Elle dispose d'un plain-pied avec 5 chambres, 4 salles d'eau/bains et 4 WC (dont 2 suites parentales avec douche et WC).
Entrée avec placards, séjour/salle à manger avec cheminée/insert bois (accès terrasse), cuisisne séparée et aménagée, WC et espace buanderie, et une 1ère suite parentale.
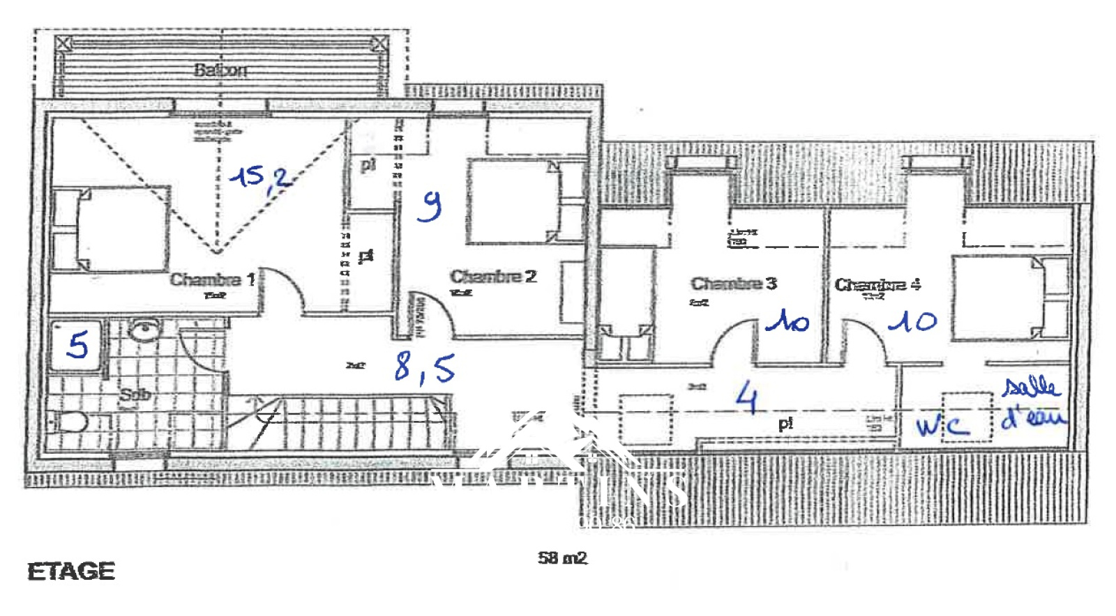
A l'étage : 3 chambres, une salle d'eau avec WC et une seconde suite parentale.

Grâce à sa grande terrasse d'environ 50m², vous pourrez profitez d'une vue à couper le souffle !

En complément, 2 garages avec greniers, et places de parkings.
N'hésitez pas à nous appeler pour tous renseignements complémentaires.

Très belle propriété à visiter uniquement sur rendez-vous.

Les informations sur les risques auxquels ce bien est exposé sont disponibles sur le site Géorisques : www.georisques.gouv.fr

Caractéristiques de ce bien

  • Surface 138 m²
  • carrez 138 m²
  • terrain 859 m²
  • séjour 30 m²
  • 5 chambre(s)
  • 1 salle(s) de bain
  • 1 salle(s) d'eau
  • construit en 2011
  • cuisine séparée (équipée)
  • Chauffage individuel : cheminée (bois)
  • Chauffage individuel : convecteur (electrique)
  • 2 garage(s)
  • 1 parking(s)
  • exposition Sud-Ouest
  • 2 niveau(x)
  • vue VALLEE D'ARGELES
  • terrasse
  • arboré

Diagnostics énergétiques

Consommation énergétique
A B C D E F G
Emission de gaz à effet de serre
A B C D E F G

Montant estimé des dépenses annuelles d'énergie pour un usage standard est compris entre 2 060 € et 2 850 € . Prix moyens des énergies indexés sur les années 2021, 2022 et 2023 (abonnements compris).

Informations financières

Prix de vente honoraires TTC inclus 485 000 €
Prix de vente honoraires TTC exclus 470 000 €
Honoraires TTC à la charge acquéreur 3,19 %
Taxe foncière annuelle 1 232 €

Autour du bien

  • Commerces et santé
  • Loisirs
  • Ecoles
  • Transports
  • Pratique

Calcul des mensualités

* Champs obligatoires