Anaïs EPAGNOUX Négociatrice
Télécharger la fiche
Nouveauté

Maison 18 pièce(s) 10 chambre(s) 357 m²

Argelès-Gazost (65400)
250 000 € Référence 2396

A propos de ce bien

PIERREFITTE-NESTALAS - Maison de Maître, dépendance et terrain autour de 900m².

Charmante maison de Maître d'une surface habitable d'environ 360 m² sur 2 niveaux (+ grenier aménageable).

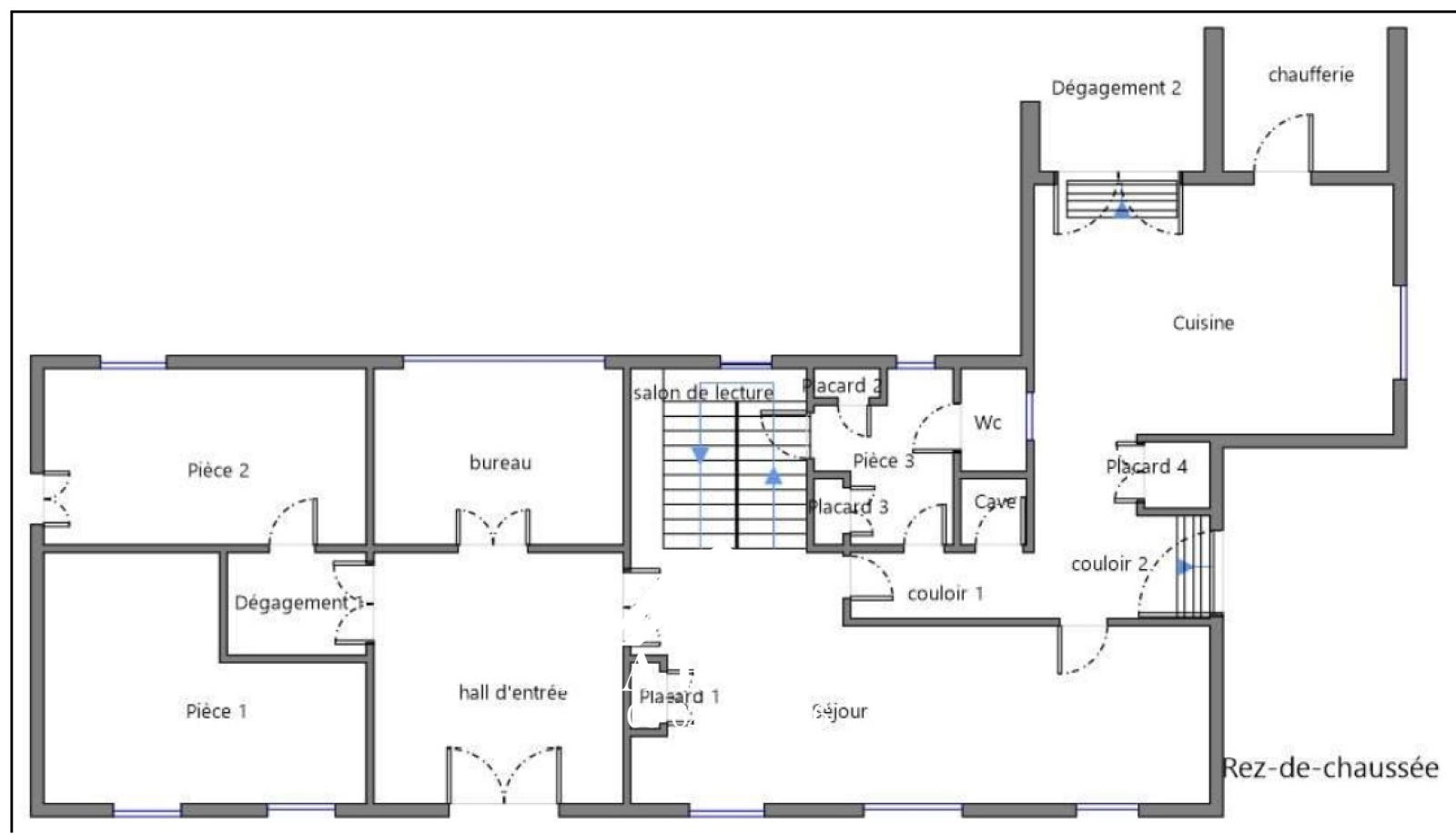
Elle comprend une très belle entrée, cuisine séparée, belle pièce de vie de 50 m² avec cheminée foyer ouvert, très bel escalier ancien, buanderie et plusieurs pièces successives.

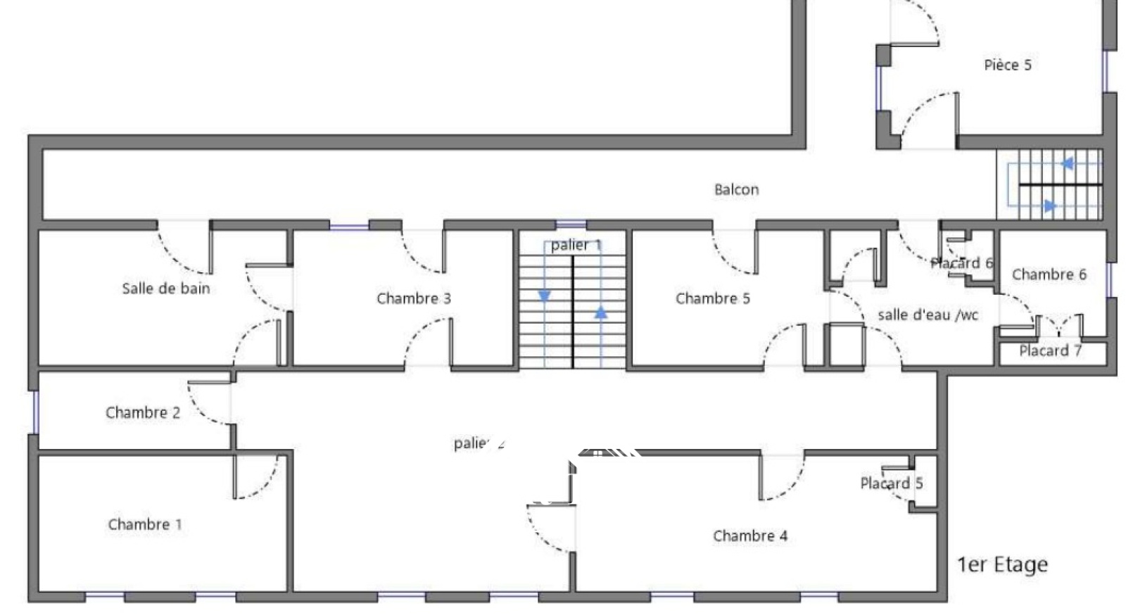
A l'étage : 5 chambres dont 1 suite parentale avec WC, 2 bureaux et WC séparés.

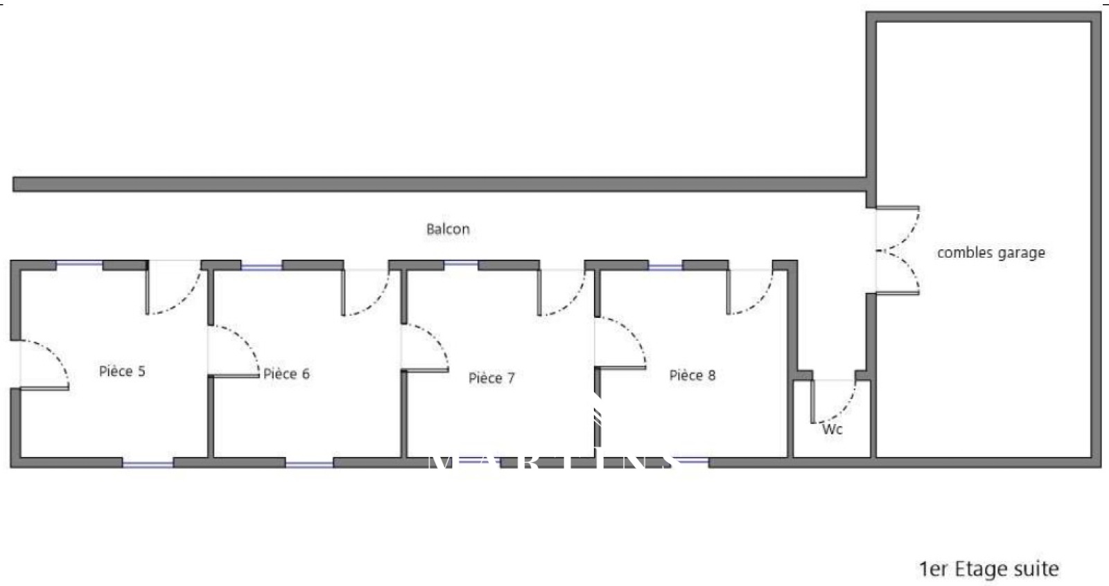
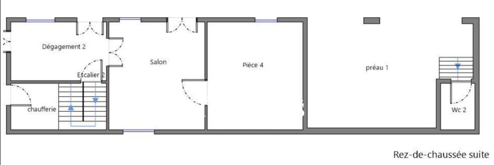
De plus et attenante, une annexe, à aménager entièrement pour une surface habitable supplémentaire d'environ 120 m² sur 2 niveaux (+ grenier).

En plein coeur du village de PIERREFITTE-NESTALAS à proximité immédiate des commerces et des écoles.

Travaux à prévoir !! Beau potentiel, nombreux projets possibles (activité professionnelle, commerciale, gîtes......)

Information et visites sur rendez-vous.
(Acquisition possible d'une parcelle de terrain constructible attenante, de 1000m² supplémentaires avec Certificat d'Urbanisme)

Les informations sur les risques auxquels ce bien est exposé sont disponibles sur le site Géorisques : www.georisques.gouv.fr

Caractéristiques de ce bien

  • Surface 357 m²
  • carrez 357 m²
  • terrain 900 m²
  • séjour 36 m²
  • 10 chambre(s)
  • 1 salle(s) de bain
  • construit en 1850
  • cuisine séparée
  • Chauffage individuel : chaudière (gaz de ville)
  • exposition Est
  • 2 niveau(x)
  • terrasse

Diagnostics énergétiques

Consommation énergétique
A B C D E F G
Emission de gaz à effet de serre
A B C D E F G

Montant estimé des dépenses annuelles d'énergie de ce logement pour un usage standard est compris entre 4 550 € et 6 210 € . 2021 étant l'année de référence des prix de l'énergie utilisés pour établir cette estimation.

Informations financières

Prix de vente honoraires TTC inclus 250 000 €
Prix de vente honoraires TTC exclus 236 000 €
Honoraires TTC à la charge acquéreur 5,93 %
Taxe foncière annuelle 4 500 €

Autour du bien

  • Commerces et santé
  • Loisirs
  • Ecoles
  • Transports
  • Pratique

Calcul des mensualités

* Champs obligatoires