Anaïs EPAGNOUX Négociatrice
Télécharger la fiche
Nouveauté

Appartement 3 pièce(s) 68 m²

Argelès-Gazost (65400)
188 500 € Référence 2408.3

A propos de ce bien

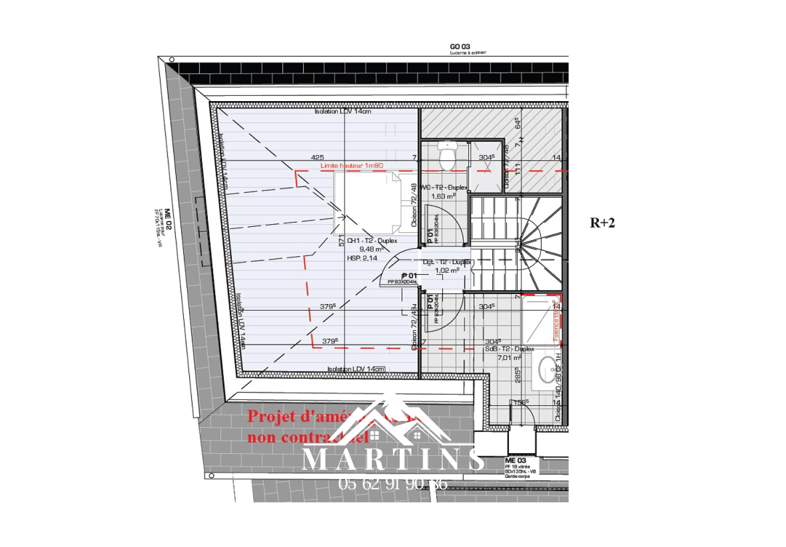
ARGELES-GAZOST - Surface plateau en duplex de 68m² avec balcon, cave et parking.

Situé à ARGELES-GAZOST, à 3 minutes à pieds du centre ville,
Dans une résidence en cours de rénovation totale.
Cet appartement duplex est vendu en l'état brut de plateau, à rénover/aménager.
Seules les menuiseries extérieurs ont été changées, en double vitrage.
D'une surface brute de 68m² environ (et 85m² au sol), en duplex, il est situé au 1er et dernier étage de la résidence.
Vendu avec balcon, cellier et place de parking privatifs.

Budget prévisionnel d'aménagement intérieur : 56.000 €, devis et proposition de plans sur demande.

Visite sur rendez-vous.

Caractéristiques de ce bien

  • Surface 68 m²
  • construit en 2024
  • exposition Sud
  • 2 niveau(x)
  • 1er étage
  • 2 étage(s)
  • cave
  • balcon

Diagnostics énergétiques

Consommation énergétique
A B C D E F G
Emission de gaz à effet de serre
A B C D E F G
DPE en cours

Informations financières

Prix de vente honoraires TTC inclus 188 500 €
Prix de vente honoraires TTC exclus 177 000 €
Honoraires TTC à la charge acquéreur 6,5 %
Taxe foncière annuelle 1 000 €

Informations de copropriété

Copropriété Oui
Nombre de lots 15

Autour du bien

  • Commerces et santé
  • Loisirs
  • Ecoles
  • Transports
  • Pratique

Calcul des mensualités

* Champs obligatoires