Anaïs EPAGNOUX Négociatrice
Télécharger la fiche
Nouveauté

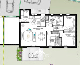
Maison 4 pièce(s) 3 chambre(s) 85 m²

Argelès-Gazost (65400)
310 000 € Référence 2395C-D

A propos de ce bien

Vallée des Gaves - Maison neuve mitoyenne de type 4, terrasse, garage et terrain autour de 375m².

Dans un petit quartier résidentiel, projet de construction d'une maison neuve. Frais de notaire réduits.

Maison mitoyenne par le garage, de type 4 avec garage et terrain clos d'une surface de 430m².

D'une surface au sol d'environ 85 m² + combles aménageables.

Plancher bois entre les niveaux + vide sanitaire.
Charpente constituée de fermettes avec combles aménageables et pose d’un écran sous toiture, ardoises naturelles. (suivant RT 2020).

Menuiseries, baies vitrées coulissantes et volets roulants électriques en aluminium.
Chauffage/climatisation réversible par une pompe à chaleur.
Production de l’eau chaude sanitaire par ballon thermodynamique.
Assainissement individuel de type micro-station.

Livraison prévue à la fin du 1er trimestre 2027 terminée avec le choix des peintures, de la cuisine, des parquets et autres...

Informations complémentaires sur demandes.

Caractéristiques de ce bien

  • Surface 85 m²
  • terrain 375 m²
  • séjour 37 m²
  • 3 chambre(s)
  • 1 salle(s) d'eau
  • construit en 2026
  • cuisine américaine (équipée)
  • Chauffage individuel : air pulsé (climatisation)
  • 1 garage(s)
  • exposition Sud
  • 1 côté(s) mitoyen(s)
  • 1 niveau(x)
  • vue Montagnes
  • terrasse
  • accès handicapé

Diagnostics énergétiques

Consommation énergétique
A B C D E F G
Emission de gaz à effet de serre
A B C D E F G
DPE en cours

Informations financières

Prix de vente honoraires TTC inclus 310 000 €
Prix de vente honoraires TTC exclus 295 000 €
Honoraires TTC à la charge acquéreur 5,08 %

Autour du bien

  • Commerces et santé
  • Loisirs
  • Ecoles
  • Transports
  • Pratique

Calcul des mensualités

* Champs obligatoires