Anaïs EPAGNOUX Négociatrice
Télécharger la fiche
Nouveauté

Maison 4 pièce(s) 3 chambre(s) 90 m²

Argelès-Gazost (65400)
264 000 € Référence 2426b

A propos de ce bien

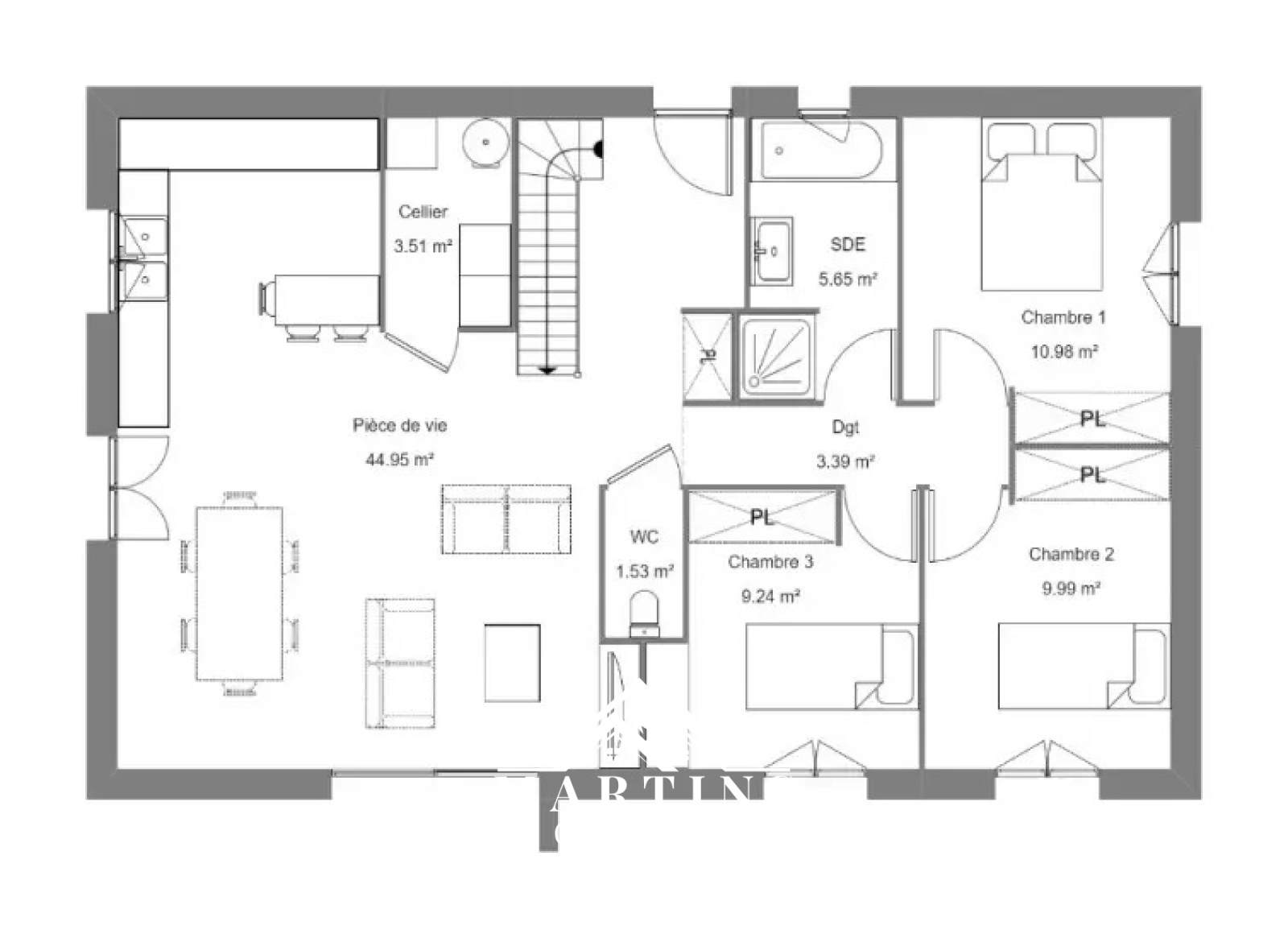
VALLEE DES GAVES - Maison neuve sur terrain de 1640 m².

A 9 kms d'ARGELES-GAZOST, Maison neuve entièrement construite de plain-pied (+ combles aménageables)
d'une surface de 90m² au sol sur un terrain de 1 640m² environ.
Production de l'eau chaude sanitaire et chauffage par pompe à chaleur AIR/AIR.

Elle dispose de trois chambres, d'une cuisine et d'une salle de bains.
Les combles sont aménageables pour réaliser 2 chambres supplémentaires.
Plan modulable et options supplémentaires possibles...

N'hésitez pas à nous consulter pour plus d'informations sur cette maison, sur les modalités de vente ou sur les démarches à suivre....

Frais à prévoir en plus :
- les
branchements et raccordements,
- les papiers peints, peintures, revêtement de sol dans les chambres
- la cuisine
- garage, terrasses etc...
- les droits d'enregistrements et les frais de notaire.

Assurances et garanties du constructeur (RC professionnelle, décennale, dommage ouvrage....)

Caractéristiques de ce bien

  • Surface 90 m²
  • 3 chambre(s)
  • 1 salle(s) d'eau
  • exposition Sud
  • 2 niveau(x)
  • vue Montagnes

Diagnostics énergétiques

Consommation énergétique
A B C D E F G
Emission de gaz à effet de serre
A B C D E F G

Montant estimé des dépenses annuelles d'énergie pour un usage standard est compris entre 750 € et 902 € . Prix moyens des énergies indexés sur les années 2021, 2022 et 2023 (abonnements compris).

Informations financières

Prix de vente honoraires TTC inclus 264 000 €

Autour du bien

  • Commerces et santé
  • Loisirs
  • Ecoles
  • Transports
  • Pratique

Calcul des mensualités

* Champs obligatoires