

Maison 4 pièce(s) 3 chambre(s) 85 m²
Argelès-Gazost (65400)A propos de ce bien
EXCLUSIVITE AGENCE - Versant Hautacam, maison neuve de type 4, garage, terrasse et terrain 630m².
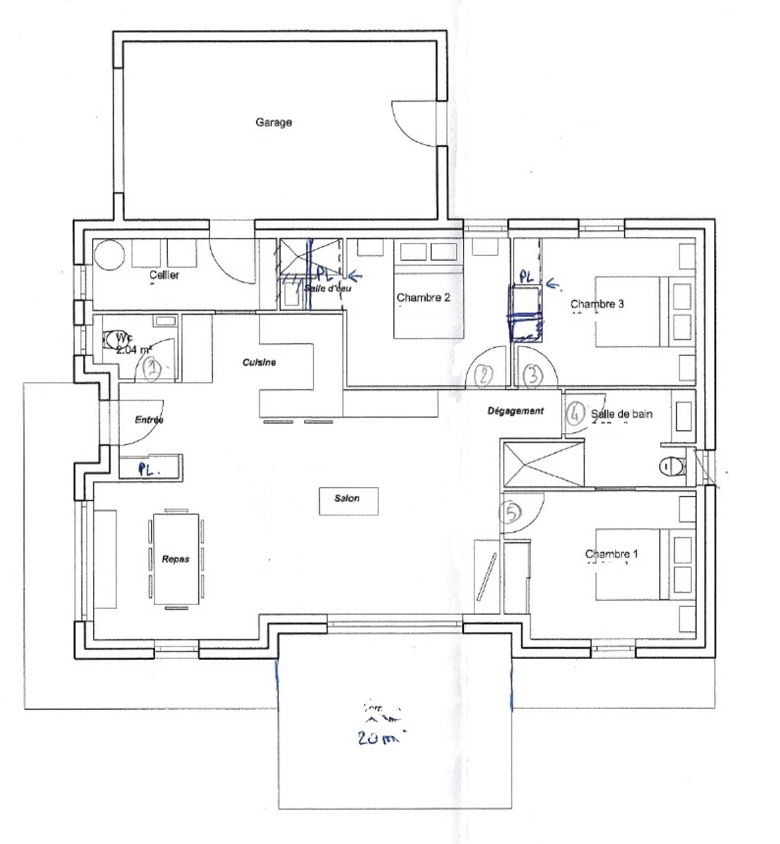
Sur le versant du Hautacam, à 3kms d'ARGELES, maison neuve d'une surface habitable de 85m², avec garage de 19m² et terrasse de 20m².
Elle dispose d'une entrée, pièce de vie avec cuisine ouverte, 3 chambres avec placards, arrière cuisine/cellier/buanderie, salle d'eau et WC séparés.
Depuis la pièce de vie, accès à la terrasse de 20m².
Exposition SUD/SUD-OUEST, sur un terrain de 630m².
Assainissement individuel.
Double vitrage et volets roulants électriques.
Chauffage par pompe à chaleur air/air.
Livraison prévue, fin 2025.
RT 2020, Prévoir en plus du prix affiché, l'aménagement, la pose et le fourniture de la cuisine, ainsi que les peintures.
Les informations sur les risques auxquels ce bien est exposé sont disponibles sur le site Géorisques
Caractéristiques de ce bien
- Surface 85 m²
- carrez 85 m²
- terrain 630 m²
- séjour 35 m²
- 3 chambre(s)
- 1 salle(s) d'eau
- construit en 2022
- cuisine
- Chauffage individuel : air pulsé (pompe à chaleur)
- 1 garage(s)
- exposition Sud-Ouest
- 1 niveau(x)
- terrasse
Diagnostics énergétiques
Diagnostics énergétiques
Informations financières
Autour du bien
-
Commerces et santé
-
Loisirs
-
Ecoles
-
Transports
-
Pratique