Anaïs EPAGNOUX Négociatrice
Vendu

Maison 8 pièce(s) 5 chambre(s) 161 m²

Argelès-Gazost (65400)
Référence 2313

A propos de ce bien

EXCLUSIVITÉ AGENCE - VERSANT HAUTACAM - Ensemble immobilier avec vue plongeante sur la vallée.

Sur le versant du Hautacam, à 10kms d'ARGELES-GAZOST, découvrez sans attendre cet ensemble immobilier offrant une vue panoramique et plongeante sur la vallée des gaves.

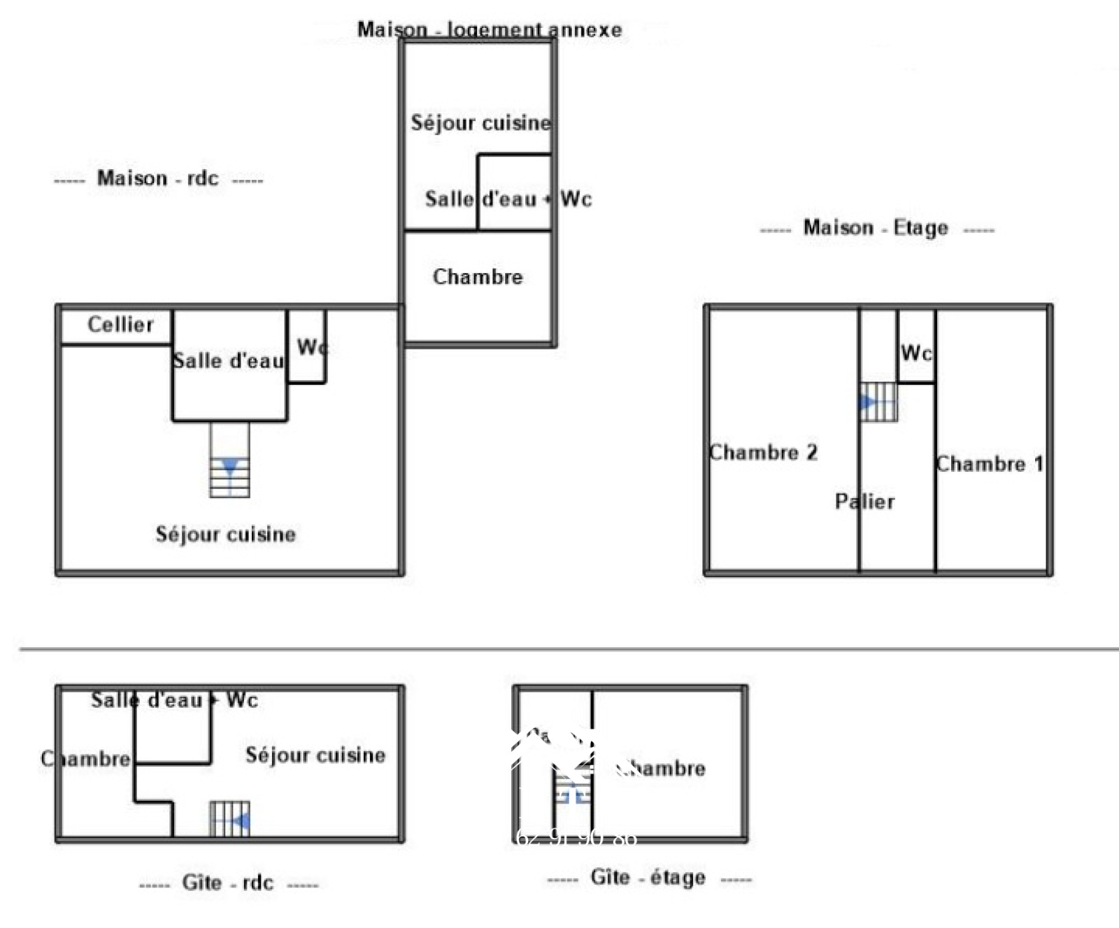
Contruit en 2011/2012 sur un terrain de 5400m² environ, cet ensemble immobilier, édifié en bois, comprend, pour une surface habitable totale de 161m² environ :

- un chalet principal d'habitation comprenant un logement de type 3 de 78m² en duplex.
- attenant à la maison principale, un logement de type 2 de plain-pied de 30m² environ.
- un chalet indépendant, de type 3, de 53m² habitables environ.

Chaque logement dispose de sa propre terrasse (SUD et OUEST) surplombant la vallée.
(2 compteurs EDF et 1 compteur d'eau)

Constructions en ossature bois, menuiseries en double vitrage et chauffage par radiateurs électriques récents + poêle à granules.
Ensemble immobilier en excellent état, vous n'aurez plus qu'à poser vos valises !

2 des 3 logements sont actuellement exploités en gîtes.
Assainisements individuels.

Photos, visites et renseignements complémentaires uniquement sur RDV.

Caractéristiques de ce bien

  • Surface 161 m²
  • carrez 161 m²
  • terrain 5 462 m²
  • 5 chambre(s)
  • 3 salle(s) d'eau
  • construit en 2011
  • cuisine américaine
  • Chauffage individuel : convecteur (electrique)
  • Chauffage individuel : poêle (granules)
  • exposition Sud-Ouest
  • 2 niveau(x)
  • vue Montagnes
  • terrasse

Diagnostics énergétiques

Consommation énergétique
A B C D E F G
Emission de gaz à effet de serre
A B C D E F G
DPE en cours

Informations financières

Taxe foncière annuelle 1 485 €

Autour du bien

  • Commerces et santé
  • Loisirs
  • Ecoles
  • Transports
  • Pratique

Calcul des mensualités

* Champs obligatoires