Anaïs EPAGNOUX Négociatrice
Vendu

Maison 4 pièce(s) 3 chambre(s) 85 m²

Argelès-Gazost (65400)
Référence 2155

A propos de ce bien

PIERREFITTE-NESTALAS, maison de ville de type 3 de 85m² habitables.

Maison en plein cœur du village d'une surface habitable de 85m².
La maison est très lumineuse et idéalement placée en centre du village. (Accès aux commerces et écoles à pieds)
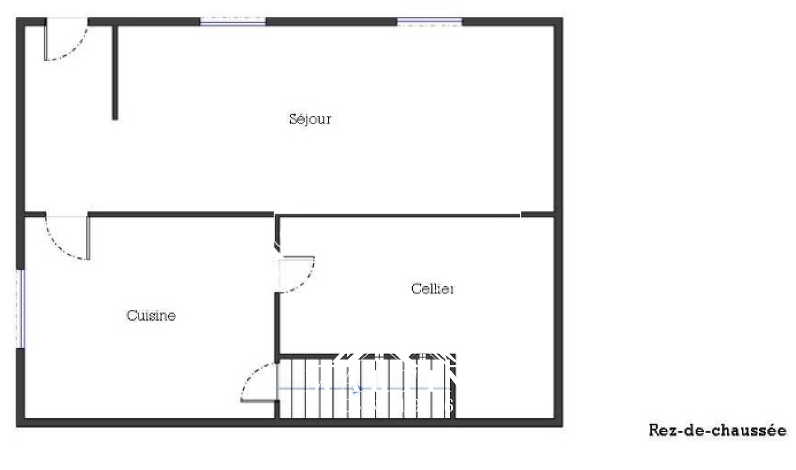
Elle dispose en rez-de-chaussée d'une entrée, pièce de vie avec insert bois, cuisine séparée et arrière cuisine/buanderie.
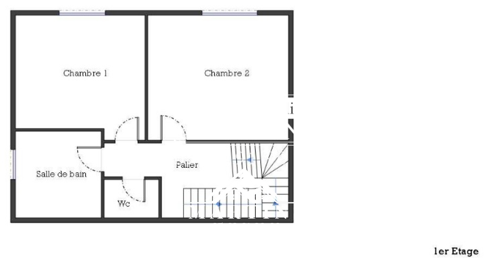
A l'étage : 2 très grandes chambres de 16m² et 18m², une salle d'eau et WC séparés.
Dans les combles : un coin bureau/coin nuit.

Toiture en ardoises de 1980 avec isolation styrodur.
Double vitrage et volets roulants (+/- 10ans).
Chauffage électrique en + de l'insert bois + clim réversible dans la pièce de vie.

Taxe foncière 625 €.

Petite terrasse et place de parking devant la maison.

Caractéristiques de ce bien

  • Surface 85 m²
  • carrez 85 m²
  • séjour 24 m²
  • 3 chambre(s)
  • 1 salle(s) d'eau
  • cuisine séparée (semi-équipée)
  • Chauffage individuel : convecteur (electrique)
  • Chauffage individuel : autre (climatisation)
  • exposition Nord-Est
  • 2 côté(s) mitoyen(s)
  • 3 niveau(x)
  • vue centre ville
  • terrasse

Diagnostics énergétiques

Consommation énergétique
A B C D E F G
Emission de gaz à effet de serre
A B C D E F G
DPE ANCIENNE VERSION

Informations financières

Les honoraires d'agence seront intégralement à la charge du vendeur  
Taxe foncière annuelle 625 €

Autour du bien

  • Commerces et santé
  • Loisirs
  • Ecoles
  • Transports
  • Pratique

Calcul des mensualités

* Champs obligatoires