Anaïs EPAGNOUX Négociatrice
Télécharger la fiche
Sous-compromis Coup de coeur

Maison 5 pièce(s) 3 chambre(s) 105 m²

Argelès-Gazost (65400)
242 650 € Référence 2425

A propos de ce bien

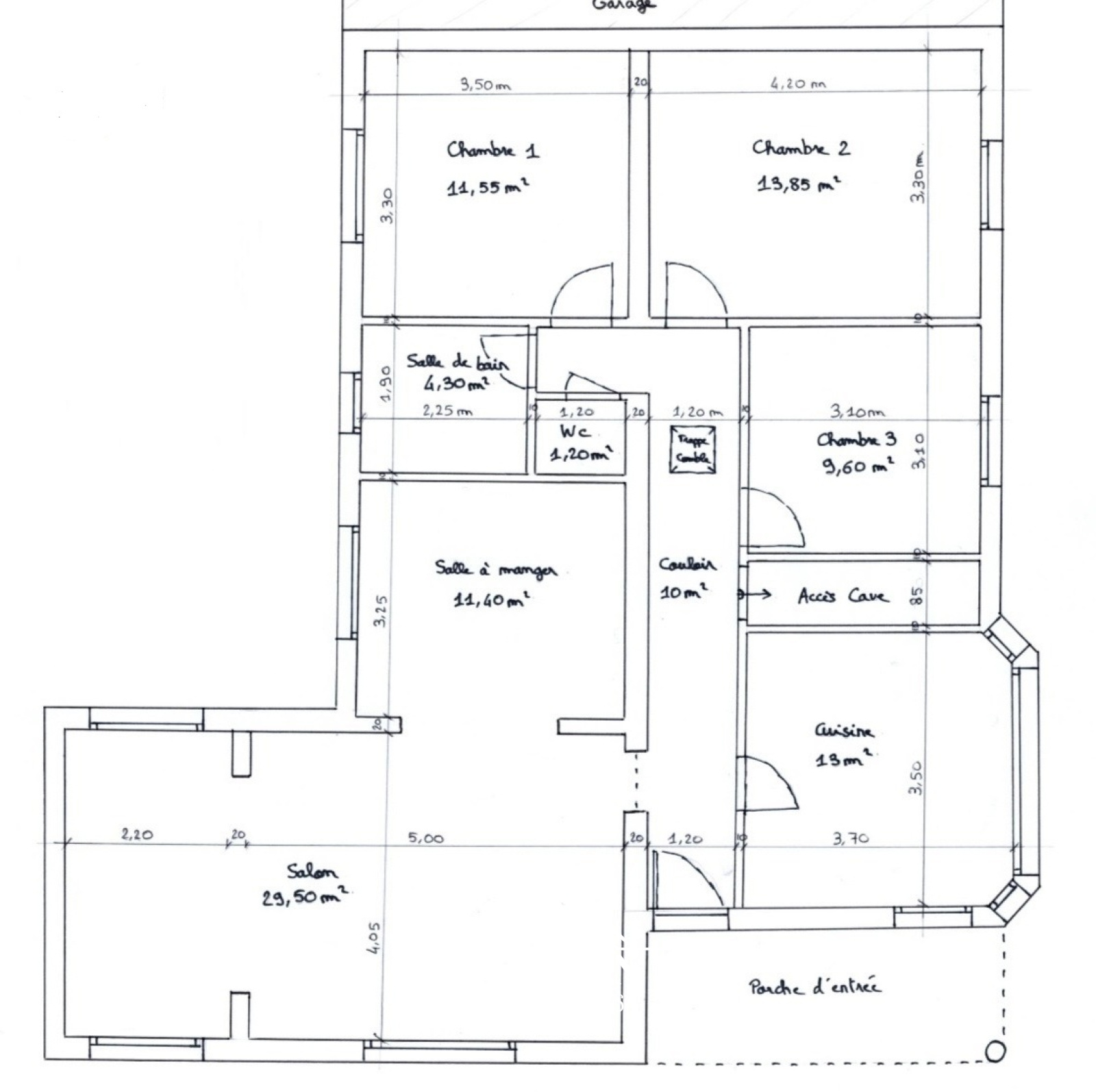
ARGELES-GAZOST - Quartier Thermal, maison de plain-pied, garage et terrain de 537m².

Située dans le quartier thermal d'ARGELES, maison d'une surface de 105m² habitables, de plain-pied, sur un terrain clos de 537m² environ.

Construite dans les années 1960, elle dispose d'une pièce de vie de plus de 40m², avec grandes ouvertures, et avec accés sur le jardin en partie SUD,
une cuisine séparée, 3 chambres, et une salle de bains avec WC séparés.
Attenant à la maison, un garage de 22m² + cave en sous-sol d'une surface d'environ 30m².

Elle est très lumineuse et située à proximité immédiate des commerces et écoles.
Des travaux sont à prévoir ! Maison inoccupée depuis plusieurs années
Visites sur RDV.

Caractéristiques de ce bien

  • Surface 105 m²
  • terrain 537 m²
  • séjour 40 m²
  • 3 chambre(s)
  • 1 salle(s) de bain
  • construit en 1960
  • Chauffage individuel : convecteur (fioul)
  • 1 garage(s)
  • exposition Sud
  • 1 niveau(x)
  • terrasse

Diagnostics énergétiques

Consommation énergétique
A B C D E F G
Emission de gaz à effet de serre
A B C D E F G

Logement à consommation énergétique excessive : classe G

Montant estimé des dépenses annuelles d'énergie pour un usage standard est compris entre 8 060 € et 10 970 € . Prix moyens des énergies indexés sur les années 2021, 2022 et 2023 (abonnements compris).

Informations financières

Prix de vente honoraires TTC inclus 242 650 €
Prix de vente honoraires TTC exclus 230 000 €
Honoraires TTC à la charge acquéreur 5,5 %
Taxe foncière annuelle 2 000 €

Autour du bien

  • Commerces et santé
  • Loisirs
  • Ecoles
  • Transports
  • Pratique

Calcul des mensualités

* Champs obligatoires