Anaïs EPAGNOUX Négociatrice
Télécharger la fiche
Sous-compromis

Maison 8 pièce(s) 6 chambre(s) 203 m²

Argelès-Gazost (65400)
598 000 € Référence 2389

A propos de ce bien

Emplacement exceptionnel pour cette maison édifiée sur 3 niveaux en 1992, rénovée en 2020, sur un terrain de 818m² avec piscine,
En position dominante avec vue panoramique !

D'une surface habitable de 203m², vous disposerez :
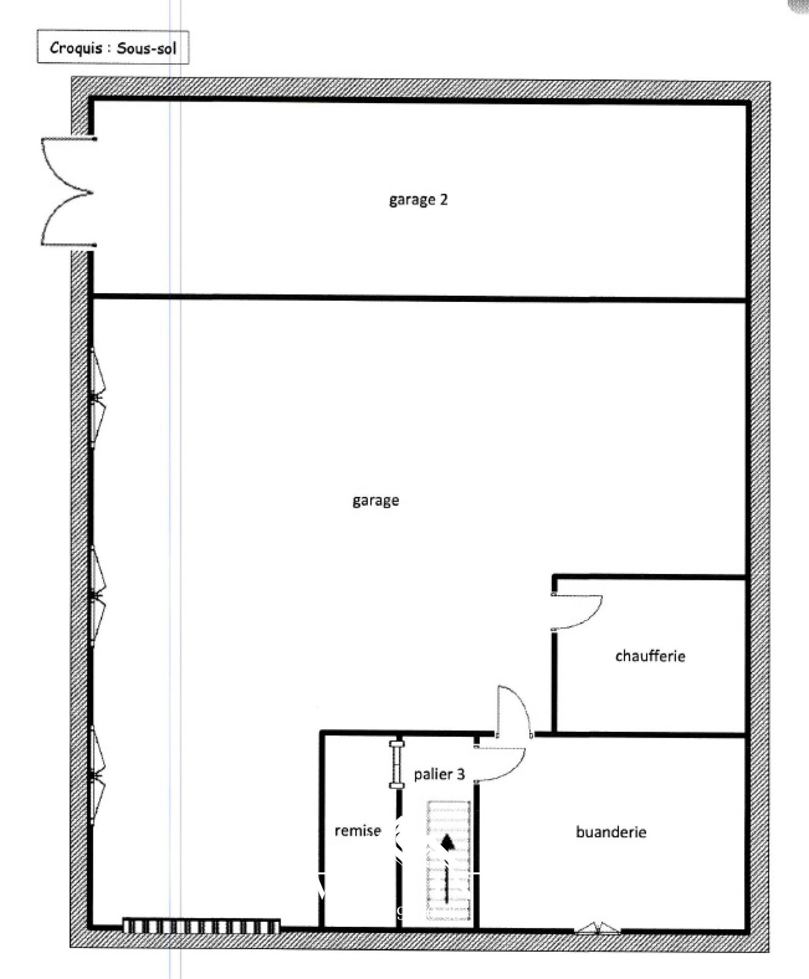
- en rez-de-jardin : un grand garage sous-sol de 110m² + buanderie + chaufferie + local piscine/rangement
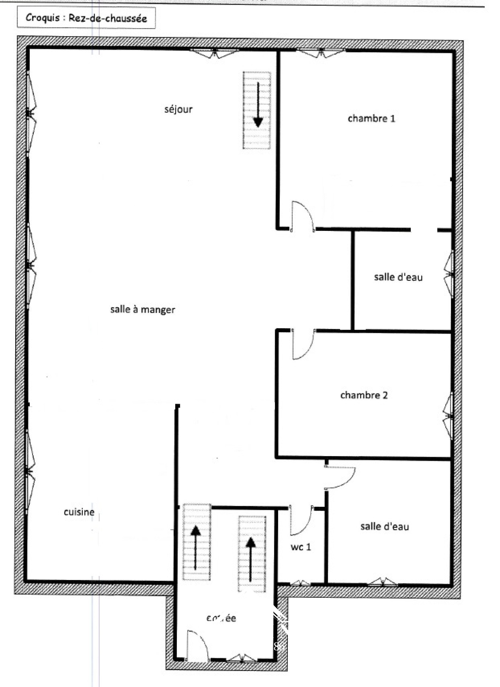
- en rez-de-chaussée : une entrée dessert une très grande pièce de vie avec cheminée centrale et cuisine ouverte équipée donnant accès sur une magnifique terrasse, 1 suite parentale avec salle d'eau, une chambre (avec accès jardin), une salle d'eau/buanderie et WC séparés.
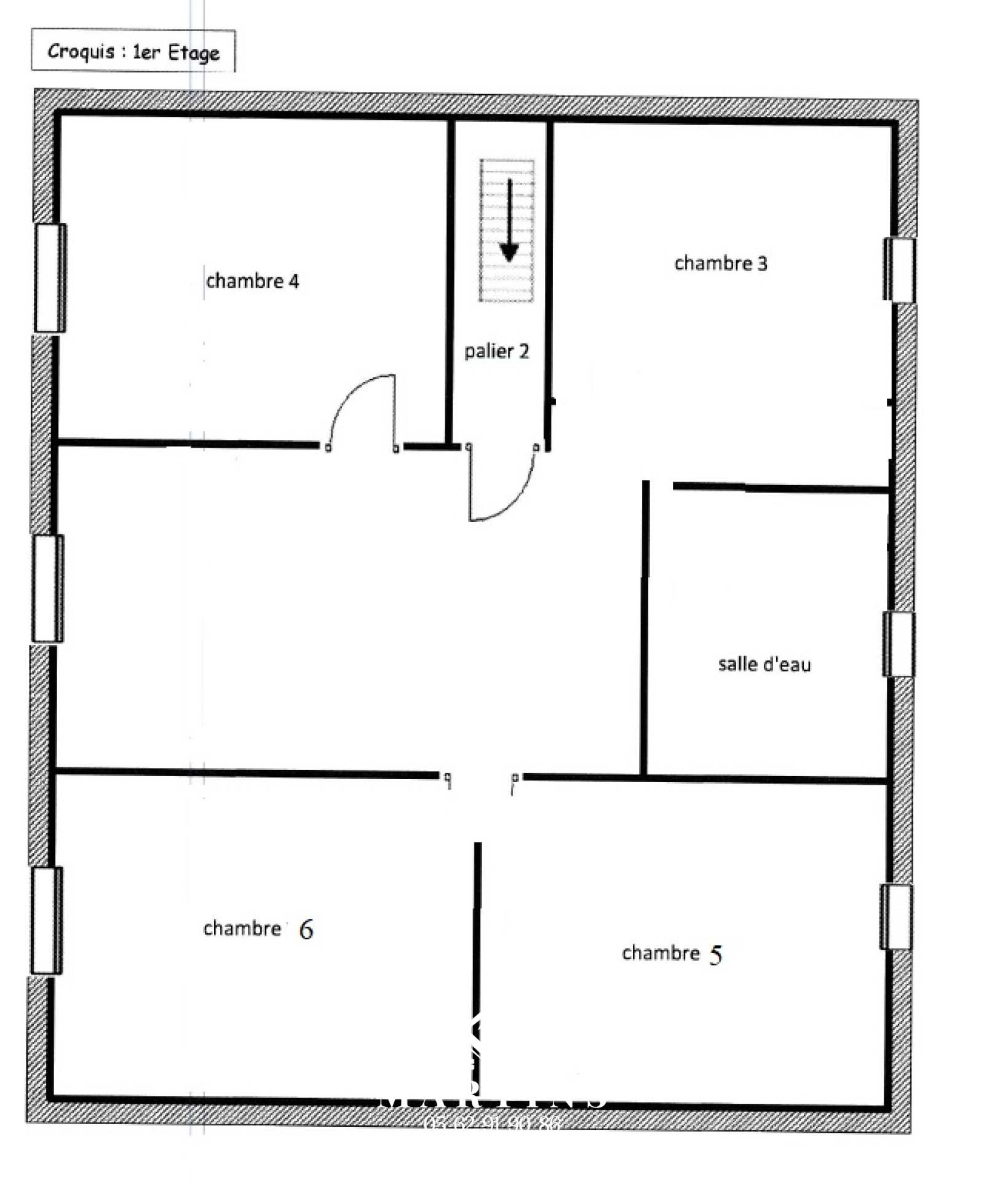
- à l'étage, mansardés : un grand espace salon/mezzanine, 4 chambres supplémentaires, une salle d'eau et WC séparés.

La vue est à couper le souffle grâce à sa grande terrasse panoramique !
Piscine de 5x5m.
Double vitrage, chauffage central au fuel, stores-ban électriques et autres belles prestations à venir découvrir sur rendez-vous uniquement.

Caractéristiques de ce bien

  • Surface 203 m²
  • carrez 203 m²
  • terrain 818 m²
  • séjour 53 m²
  • 6 chambre(s)
  • 3 salle(s) d'eau
  • construit en 1992
  • cuisine américaine (équipée)
  • Chauffage individuel : poêle (bois)
  • Chauffage central : radiateur (fioul)
  • 1 garage(s)
  • exposition Sud
  • 3 niveau(x)
  • terrasse

Diagnostics énergétiques

Consommation énergétique
A B C D E F G
Emission de gaz à effet de serre
A B C D E F G
DPE ANCIENNE VERSION

Informations financières

Prix de vente honoraires TTC inclus 598 000 €
Prix de vente honoraires TTC exclus 575 000 €
Honoraires TTC à la charge acquéreur 4 %
Taxe foncière annuelle 1 900 €

Autour du bien

  • Commerces et santé
  • Loisirs
  • Ecoles
  • Transports
  • Pratique

Calcul des mensualités

* Champs obligatoires