Anaïs EPAGNOUX Négociatrice
Vendu

Maison 5 pièce(s) 4 chambre(s) 124 m²

Argelès-Gazost (65400)
Référence 2378

A propos de ce bien

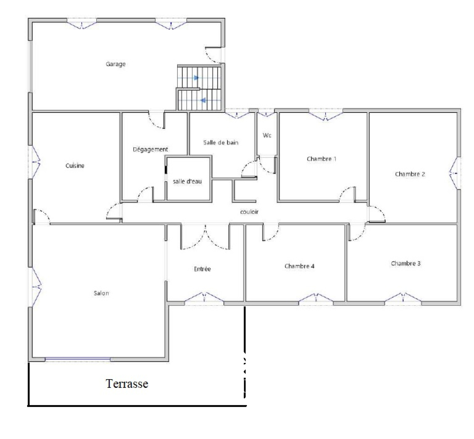
3KMS ARGELES - Maison de 124m² habitables et terrain clos de 942m².

Située dans la plaine, entre ARGELES-GAZOST et PIERREFFITE-NESTALAS,
Maison de 1963 construire de plain-pied (4 marches pour y accéder depuis la terrasse).
Disposant d'une triple exposition EST / SUD et OUEST, cette maison dispose de grandes ouvertures lui permettant ainsi d'être très lumineuse !

Espace de vie/salon avec accès terrasse et poêle à bois, salle à manger, cuisine aménagée équipée séparée, un couloir dessert 4 grandes chambres, une salle d'eau et une salle de bains avec WC + WC séparés.

Attenant à la maison, un garage de 25m² avec grenier aménageable + grand grenier au dessus de la maison. (et dépendances en bois à l'arrière de la maison)

Isolation par l'extérieur, chauffage par pompe à chaleur (air/eau), ballon électrique pour la production de l'eau chaude sanitaire,
menuieries en double vitrage, volets roulants électriques et manuels.

N'hésitez pas à nous appeler pour avoir plus de renseignements et/ou fixer un RDV pour la visiter !!

Caractéristiques de ce bien

  • Surface 124 m²
  • carrez 124 m²
  • terrain 942 m²
  • séjour 22 m²
  • 4 chambre(s)
  • 1 salle(s) de bain
  • 1 salle(s) d'eau
  • construit en 1963
  • cuisine séparée (équipée)
  • Chauffage individuel : poêle (bois)
  • Chauffage individuel : radiateur (pompe à chaleur)
  • 1 garage(s)
  • exposition Sud
  • 1 niveau(x)
  • terrasse

Diagnostics énergétiques

Consommation énergétique
A B C D E F G
Emission de gaz à effet de serre
A B C D E F G

Montant estimé des dépenses annuelles d'énergie de ce logement pour un usage standard est compris entre 1 460 € et 2 030 € . 2022 étant l'année de référence des prix de l'énergie utilisés pour établir cette estimation.

Informations financières

Taxe foncière annuelle 1 170 €

Autour du bien

  • Commerces et santé
  • Loisirs
  • Ecoles
  • Transports
  • Pratique

Calcul des mensualités

* Champs obligatoires