

Maison 5 pièce(s) 4 chambre(s) 125 m²
Argelès-Gazost (65400)A propos de ce bien
EXCLUSIVITE AGENCE - VAL D'AZUN - Maison ossature bois sur terrain d'environ 1.000m².
A découvrir et en exclusivité !
Maison ossature bois, située dans le Val d'Azun, en position dominante à 3kms d'ARGELES.
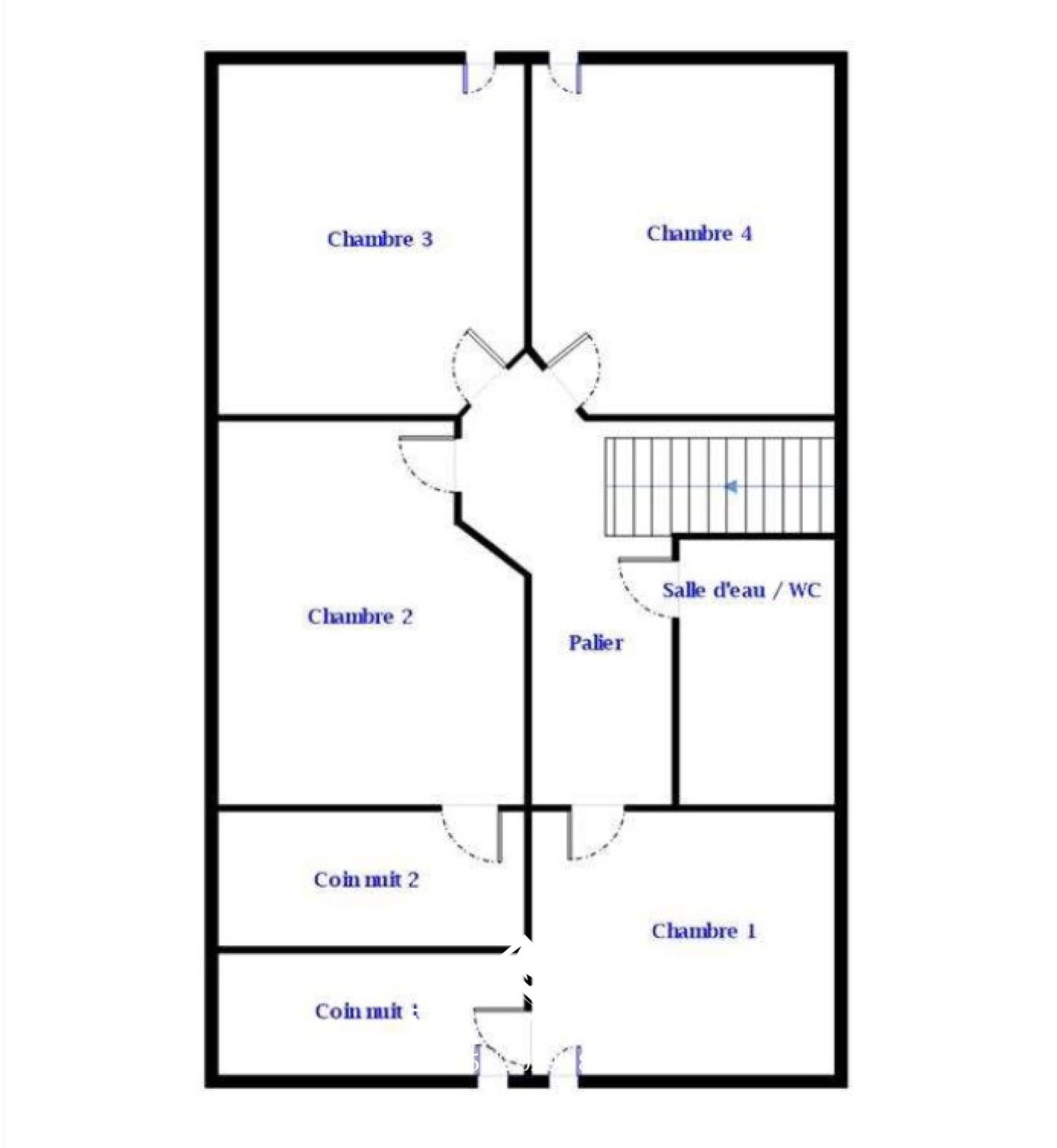
Construite en 2006 et d'une surface habitable d'environ 125m² sur ses 2 niveaux.
En rez-de-chaussée : une grande pièce de vie de plus de 50m² avec cuisine ouverte aménagée et équipée, salle d'eau, WC séparés, buanderie/cellier (avec la possibilité de créer une chambre).
A l'étage, mansardés, 4 chambres, un espace dressing/bureau et salle de bains avec WC.
Pôele à bois dans la pièce de vie + convecteurs électriques.
Production de l'eau chaude sanitaire par ballon électrique.
Très belles terrasses en parties SUD et OUEST avec magnifique vue dégagée sur le Val d'Azun.
A visiter sans tarder !!
Vente meublée possible.
Caractéristiques de ce bien
- Surface 125 m²
- carrez 125 m²
- terrain 950 m²
- séjour 50 m²
- 4 chambre(s)
- 1 salle(s) de bain
- 1 salle(s) d'eau
- construit en 2006
- cuisine américaine (équipée)
- Chauffage individuel : poêle (bois)
- Chauffage individuel : convecteur (electrique)
- exposition Sud
- 2 niveau(x)
- vue Val d'Azun
- terrasse
Diagnostics énergétiques
Montant estimé des dépenses annuelles d'énergie pour un usage standard est compris entre 1 333 € et 1 880 € . Prix moyens des énergies indexés sur les années 2021, 2022 et 2023 (abonnements compris).
Diagnostics énergétiques
Montant estimé des dépenses annuelles d'énergie pour un usage standard est compris entre 1 333 € et 1 880 € . Prix moyens des énergies indexés sur les années 2021, 2022 et 2023 (abonnements compris).
Informations financières
Autour du bien
-
Commerces et santé
-
Loisirs
-
Ecoles
-
Transports
-
Pratique