 
         
                Appartement 2 pièce(s) 1 chambre(s) 48 m²
Argelès-Gazost (65400)A propos de ce bien
EXCLUSIVITE AGENCE - Grand appartement T2 de 48m² + parking + cave.
Au centre ville d'ARGELES, disposant de sa place de parking et cave, dans résidence sécurisée,
Venez visiter ce grand appartement de type 2 (ancien T3), situé en rez-de-chaussée de la résidence.
Entièrement rénové récemment, il est très lumineux et fonctionnel.
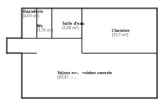
Entrée, pièce de vie avec cuisine aménagée et équipé de 30m², une chambres avec placards, une salle d'eau, WC séparés, et cellier/buanderie.
Place de parking, résidence sécurisée + cave.
Charges de copropriété : 180 € par trimestre (eau comprise)
Exposé SUD / SUD-OUEST
A visiter sans tarder !!!
Caractéristiques de ce bien
- Surface 48 m²
- carrez 48 m²
- séjour 30 m²
- 1 chambre(s)
- 1 salle(s) de bain
- 1 salle(s) d'eau
- construit en 1960
- cuisine américaine
- Chauffage individuel : convecteur (electrique)
- exposition Sud
- 1 niveau(x)
- 3 étage(s)
- ascenseur
- cave
Diagnostics énergétiques
Diagnostics énergétiques
Informations financières
Autour du bien
- 
            Commerces et santé
            
- 
            Loisirs
            
- 
            Ecoles
            
- 
            Transports
            
- 
            Pratique
            
 
                     
                                 
                                 
                                 
                                 
                                 
                                 
                                 
                                 
                                 
                                 
                                 
                                 
                                